
103100
ID Number:
103100
House Plan Details
ID Number:
103100
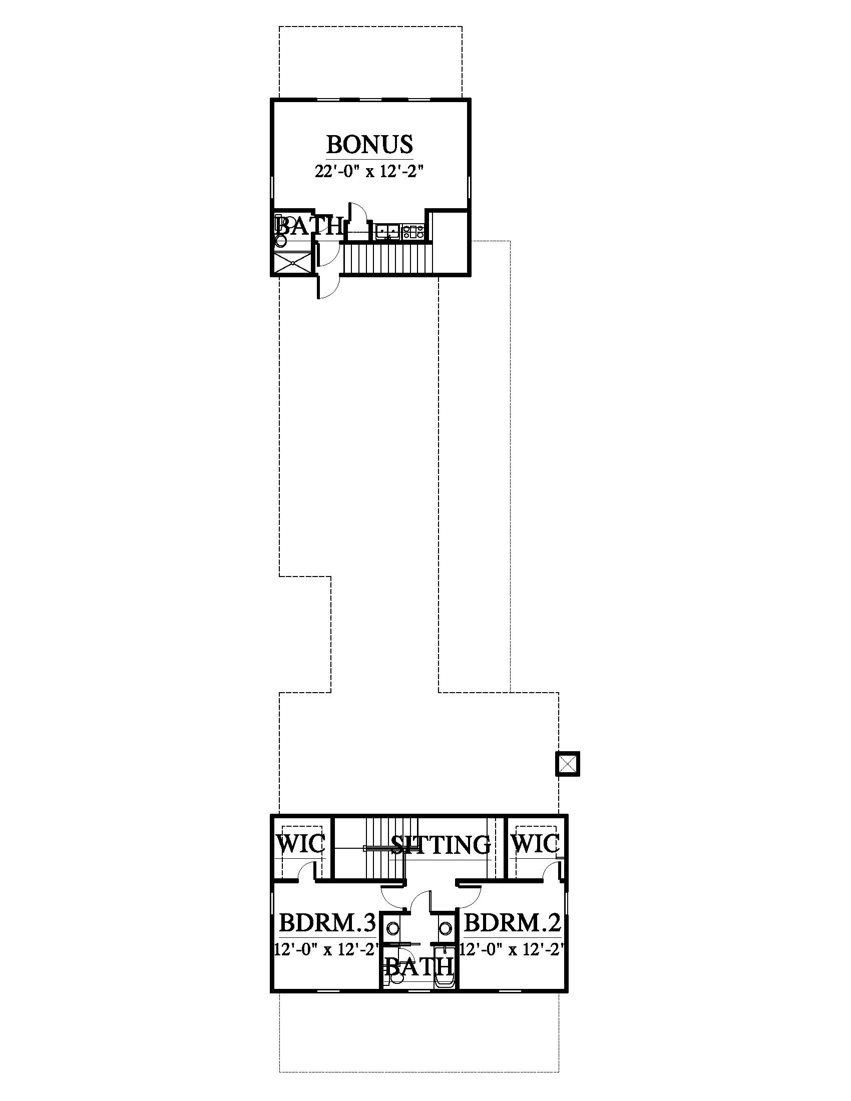
1st Floor: 
2081
sq.ft.
2nd Floor: 
615
sq.ft.
Total Sq. Ft.: 
2696'
Width: 
35'
Length: 
118' 6"
Bedrooms: 
3
Bathrooms: 
2
1/2 Bathroom: 
Yes
Screened In Porch: 
No
Covered Porch: 
513
sq.ft.
Deck: 
No
Loft: 
No
1st Flr. Master: 
Yes
Basement: 
No
Attached Garage: 
Yes
Garage: 
618
sq.ft.
Elevated: 
No
Two Masters: 
No
Mother In Law Suite: 
Yes
Upside Down: 
No
Elevator: 
No
Tower: 
No
This plan is included in these house plan books:
The East Beach Collection Vol. 1
The East Beach Collection Vol. 1
Notes:
Bonus above garage: 387 sq.ft. (not included in overall sq.ft.)



