
Southwood (153137)
ID Number:
153137
House Plan Details
ID Number:
153137
1st Floor: 
1578
sq.ft.
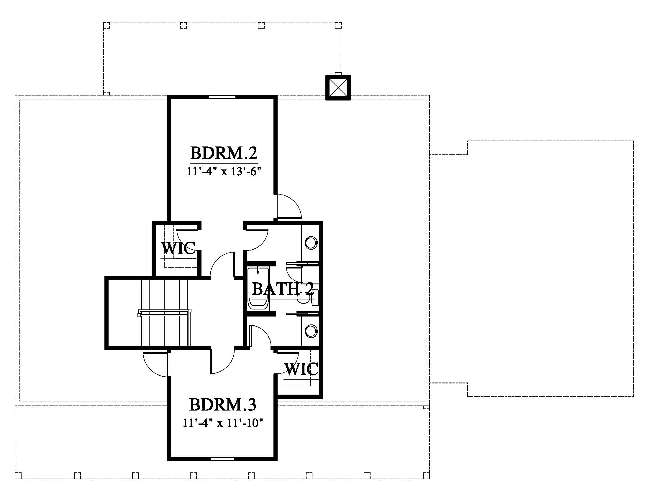
2nd Floor: 
571
sq.ft.
Total Sq. Ft.: 
2149'
Width: 
67' 8"
Length: 
50'
Bedrooms: 
3
Bathrooms: 
2
1/2 Bathroom: 
Yes
Screened In Porch: 
202
sq.ft.
Covered Porch: 
363
sq.ft.
Deck: 
No
Loft: 
No
1st Flr. Master: 
Yes
Basement: 
No
Attached Garage: 
Yes
Garage: 
587
sq.ft.
Elevated: 
No
Two Masters: 
No
Mother In Law Suite: 
No
Upside Down: 
No
Elevator: 
No
Tower: 
No



