
Bay Point Cottage (173219)
ID Number:
173219
House Plan Details
ID Number:
173219
1st Floor: 
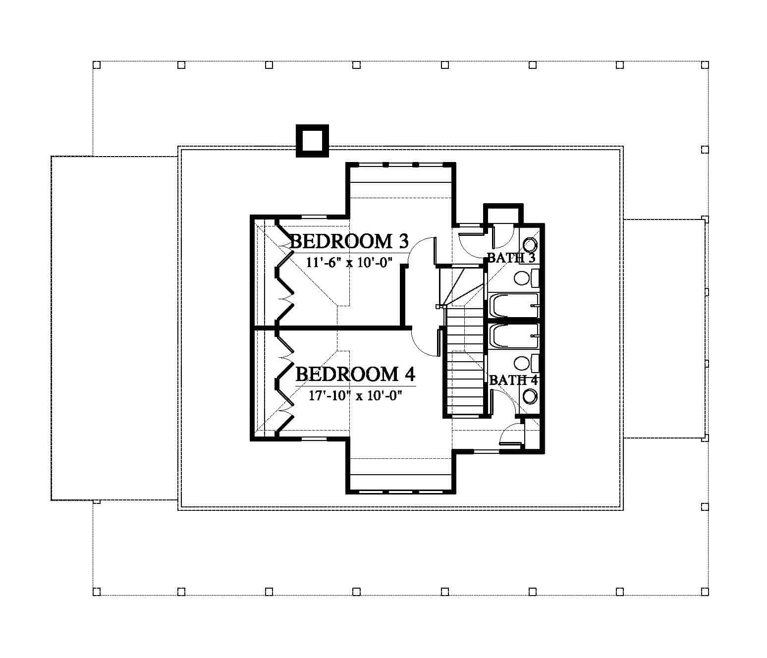
1983
sq.ft.
2nd Floor: 
650
sq.ft.
Total Sq. Ft.: 
2633'
Width: 
62'
Length: 
50' 4"
Bedrooms: 
4
Bathrooms: 
4
1/2 Bathroom: 
Yes
Screened In Porch: 
No
Porch: 
No
Deck: 
No
Loft: 
No
1st Flr. Master: 
Yes
Basement: 
No
Garage: 
No
Elevated: 
No
Two Masters: 
No
Mother In Law Suite: 
No
Upside Down: 
No
Elevator: 
No
Tower: 
No



