
Edisto Beach Cottage (193123)
ID Number:
193123
House Plan Details
ID Number:
193123
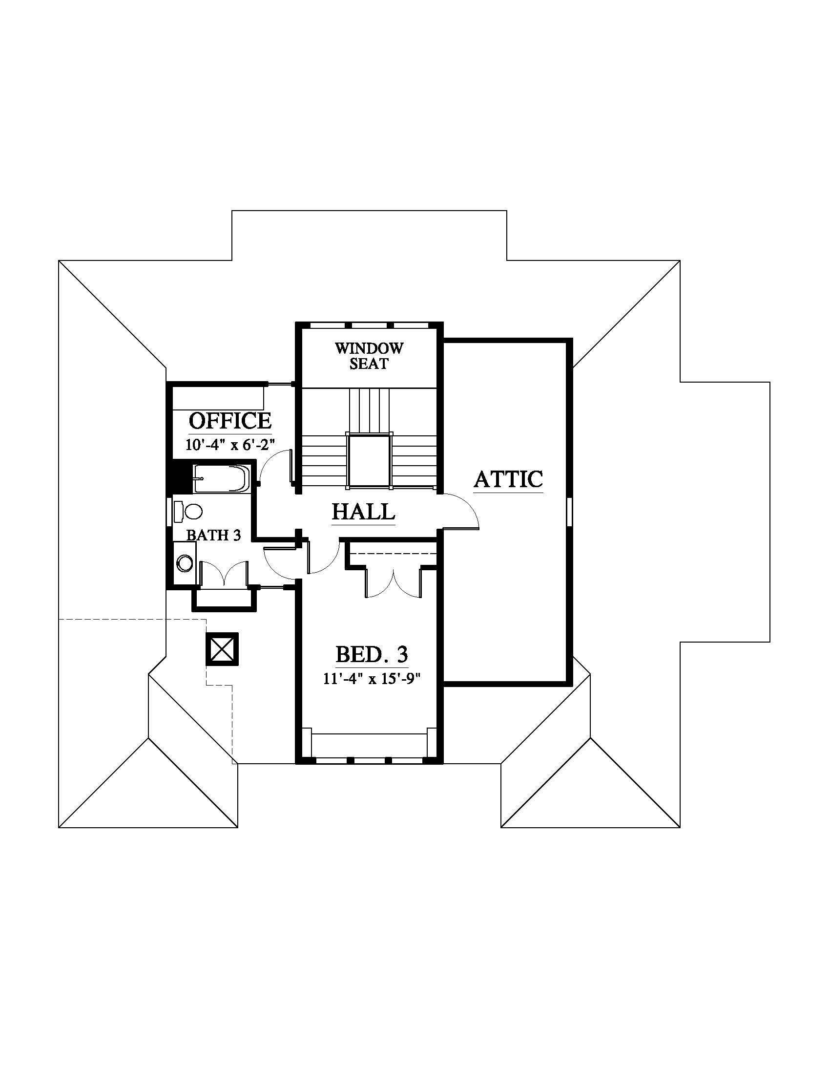
2nd Floor: 
2389
sq.ft.
3rd Floor: 
479
sq.ft.
Total Sq. Ft.: 
2868'
Width: 
59' 6"
Length: 
57' 3"
Bedrooms: 
3
Bathrooms: 
3
1/2 Bathroom: 
Yes
Screened In Porch: 
No
Porch: 
No
Deck: 
No
Loft: 
No
1st Flr. Master: 
Yes
Basement: 
No
Attached Garage: 
Yes
Garage: 
1368
sq.ft.
Elevated: 
Yes
Two Masters: 
No
Mother In Law Suite: 
No
Upside Down: 
No
Elevator: 
Yes
Tower: 
No
3rd Floor




