
Higgs House (073200)
ID Number:
073200
House Plan Details
ID Number:
073200
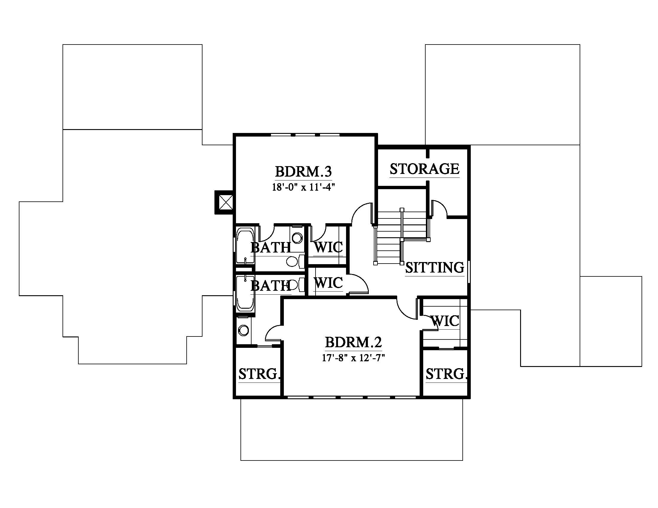
1st Floor: 
2095
sq.ft.
2nd Floor: 
916
sq.ft.
Total Sq. Ft.: 
3011'
Width: 
53' 10"
Length: 
80' 6"
Bedrooms: 
3
Bathrooms: 
3
1/2 Bathroom: 
Yes
Screened In Porch: 
2722
sq.ft.
Covered Porch: 
229
sq.ft.
Deck: 
No
Loft: 
No
1st Flr. Master: 
Yes
Basement: 
No
Garage: 
No
Elevated: 
No
Two Masters: 
Yes
Mother In Law Suite: 
No
Upside Down: 
No
Elevator: 
No
Tower: 
No
Notes:
Look at 073200G for accompanying garage option.





