
Holiday House (09346)
ID Number:
09346
House Plan Details
ID Number:
09346
1st Floor: 
1863
sq.ft.
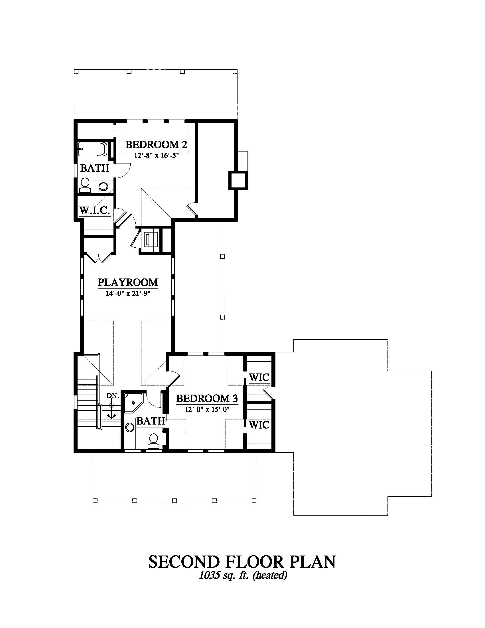
2nd Floor: 
1035
sq.ft.
Total Sq. Ft.: 
2898'
Width: 
57'
Length: 
71'
Bedrooms: 
3
Bathrooms: 
3
1/2 Bathroom: 
Yes
Screened In Porch: 
167
sq.ft.
Covered Porch: 
416
sq.ft.
Deck: 
35
sq.ft.
Loft: 
No
1st Flr. Master: 
Yes
Basement: 
No
Garage: 
No
Elevated: 
No
Two Masters: 
No
Mother In Law Suite: 
No
Upside Down: 
No
Elevator: 
No
Tower: 
No



