skip to Main Content

Longview House

ID Number: NC0070
(What's included?)
Clear
House Plan Details
ID Number: NC0070
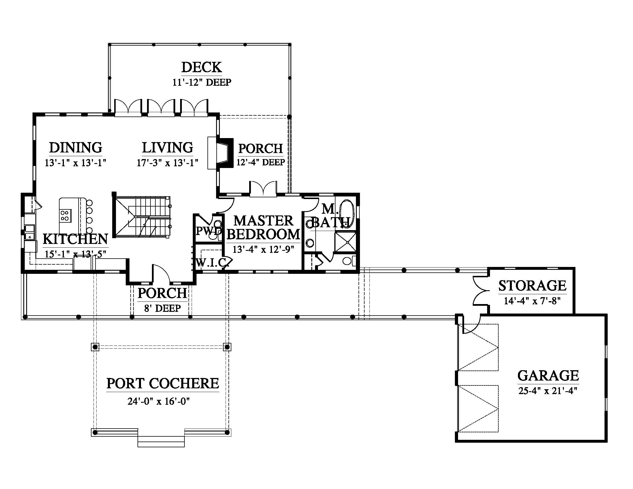
1st Floor:  381 sq.ft.
2nd Floor:  1262 sq.ft.
3rd Floor:  993 sq.ft.
Total Sq. Ft.:  2636'
Width:  100' 6"
Length:  69' 4"
Bedrooms:  4
Bathrooms:  3
1/2 Bathroom:  Yes
Screened In Porch:  No
Covered Porch:  803 sq.ft.
Deck:  661 sq.ft.
Loft:  No
1st Flr. Master:  Yes
Basement:  No
Attached Garage:  Yes
Garage:  572 sq.ft.
Elevated:  No
Two Masters:  No
Mother In Law Suite:  No
Upside Down:  No
Elevator:  No
Tower:  No

Floor Plans (Click to reverse floor plans)

1st Floor
2nd Floor
3rd Floor

Not sure what house plans you should choose?

Let our expert Housematch© tool help you with instant suggestions!

Recognized By

Architectural Portfolio
Architectural Portfolio
Architectural Portfolio
Architectural Portfolio
Architectural Portfolio
Search