
New Farmhouse (153261)
ID Number:
153261
House Plan Details
ID Number:
153261
1st Floor: 
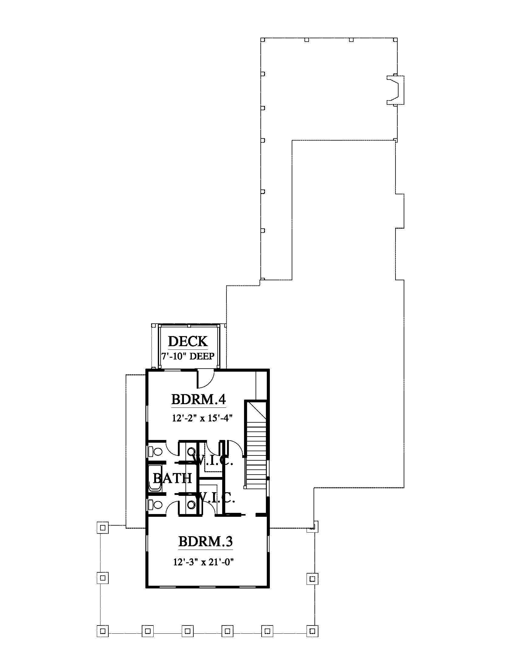
2402
sq.ft.
2nd Floor: 
771
sq.ft.
Total Sq. Ft.: 
3173'
Width: 
53' 11"
Length: 
105' 2"
Bedrooms: 
4
Bathrooms: 
2
1/2 Bathroom: 
Yes
Screened In Porch: 
439
sq.ft.
Covered Porch: 
775
sq.ft.
Deck: 
337
sq.ft.
Loft: 
No
1st Flr. Master: 
Yes
Basement: 
No
Garage: 
No
Elevated: 
No
Two Masters: 
No
Mother In Law Suite: 
No
Upside Down: 
No
Elevator: 
No
Tower: 
No



