
Old Oyster (14396)
ID Number:
14396
House Plan Details
ID Number:
14396
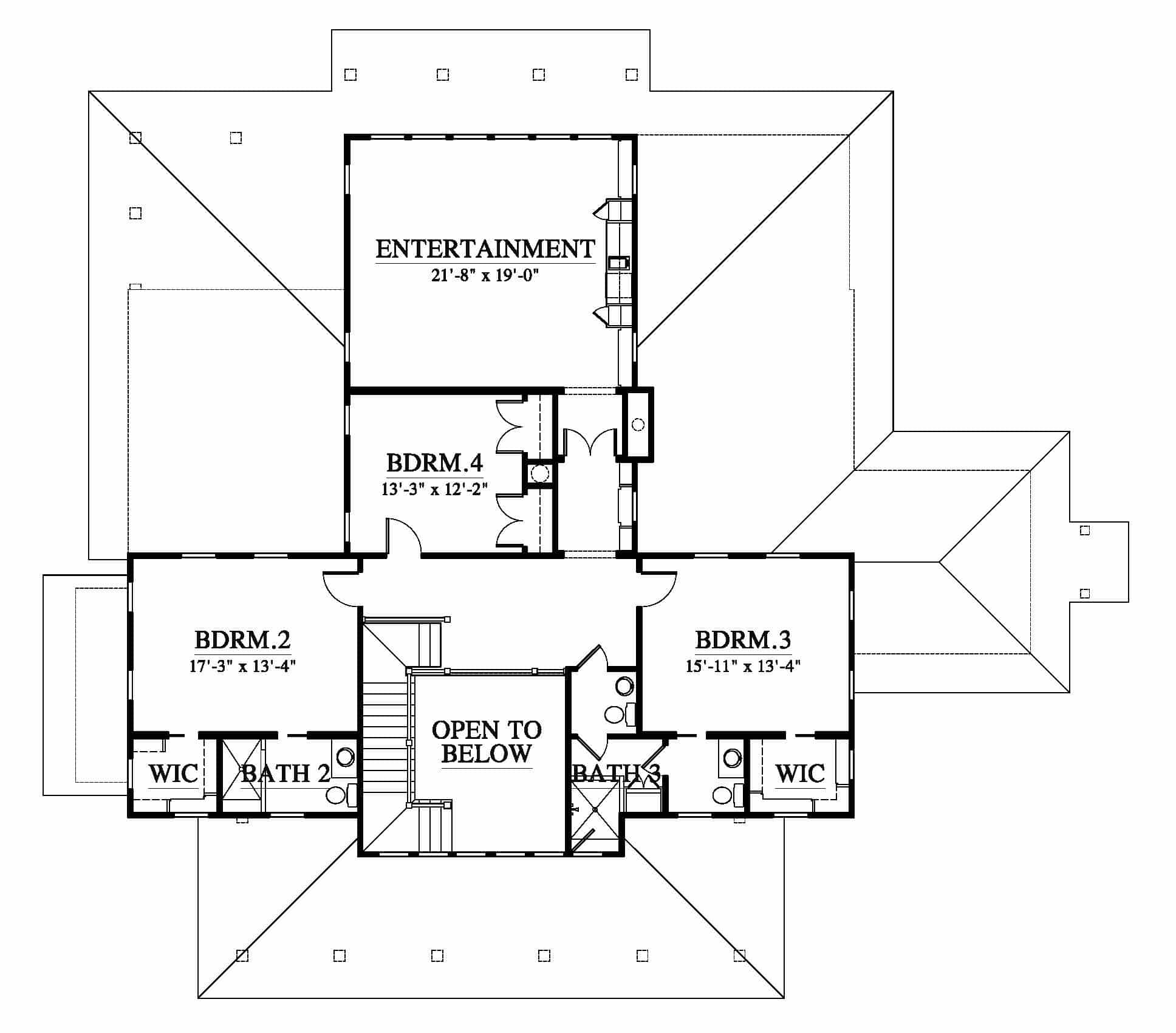
1st Floor: 
2744
sq.ft.
2nd Floor: 
1663
sq.ft.
Total Sq. Ft.: 
4407'
Width: 
68' 2"
Length: 
77' 6"
Bedrooms: 
4
Bathrooms: 
3
1/2 Bathroom: 
Yes
Screened In Porch: 
572
sq.ft.
Covered Porch: 
371
sq.ft.
Deck: 
No
Loft: 
No
1st Flr. Master: 
Yes
Basement: 
No
Garage: 
No
Elevated: 
No
Two Masters: 
No
Mother In Law Suite: 
No
Upside Down: 
No
Elevator: 
No
Tower: 
No











