
St. Helena (10358)
ID Number:
10358
House Plan Details
ID Number:
10358
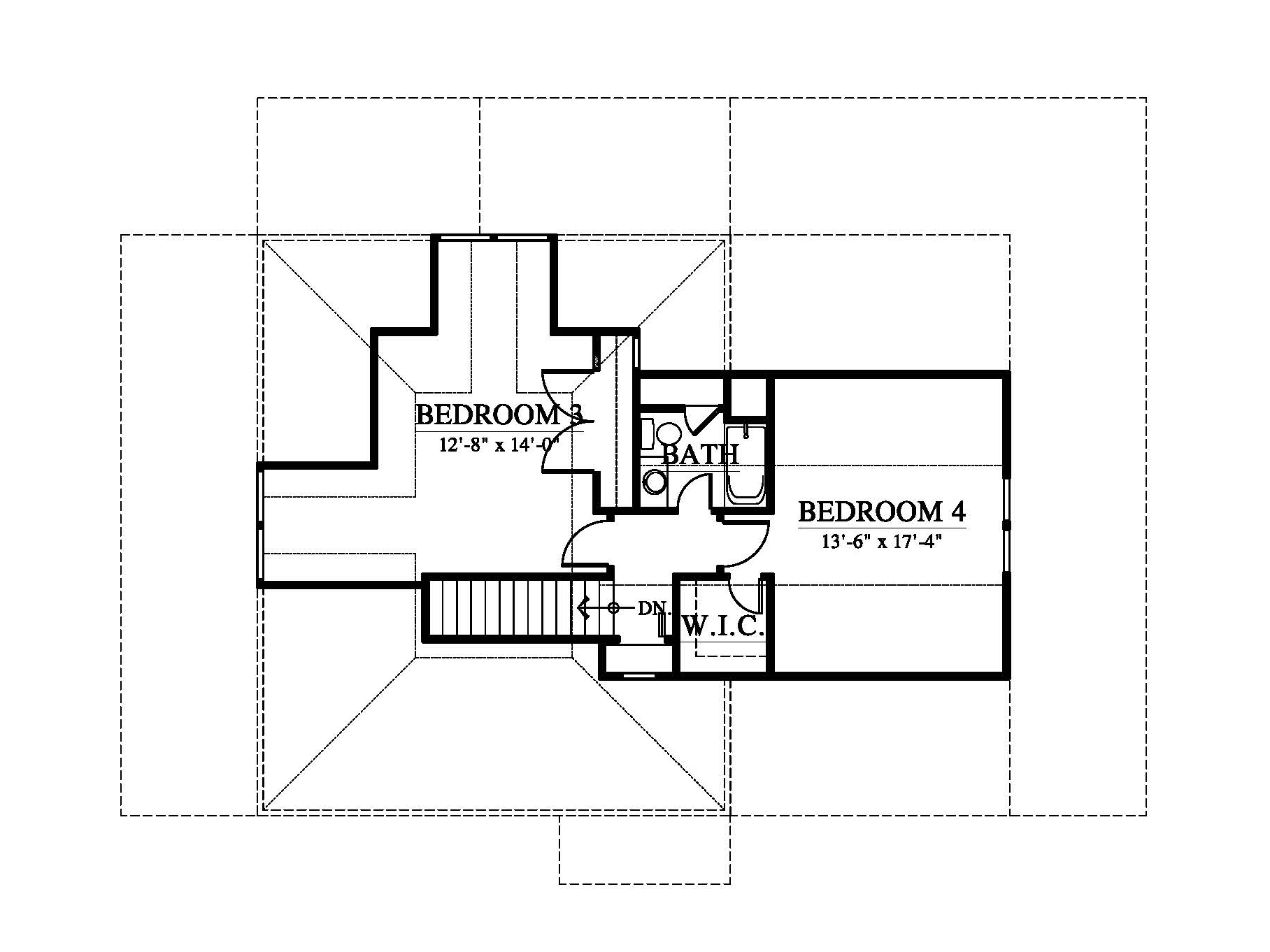
2nd Floor: 
1875
sq.ft.
3rd Floor: 
724
sq.ft.
Total Sq. Ft.: 
2599'
Width: 
46'
Length: 
60'
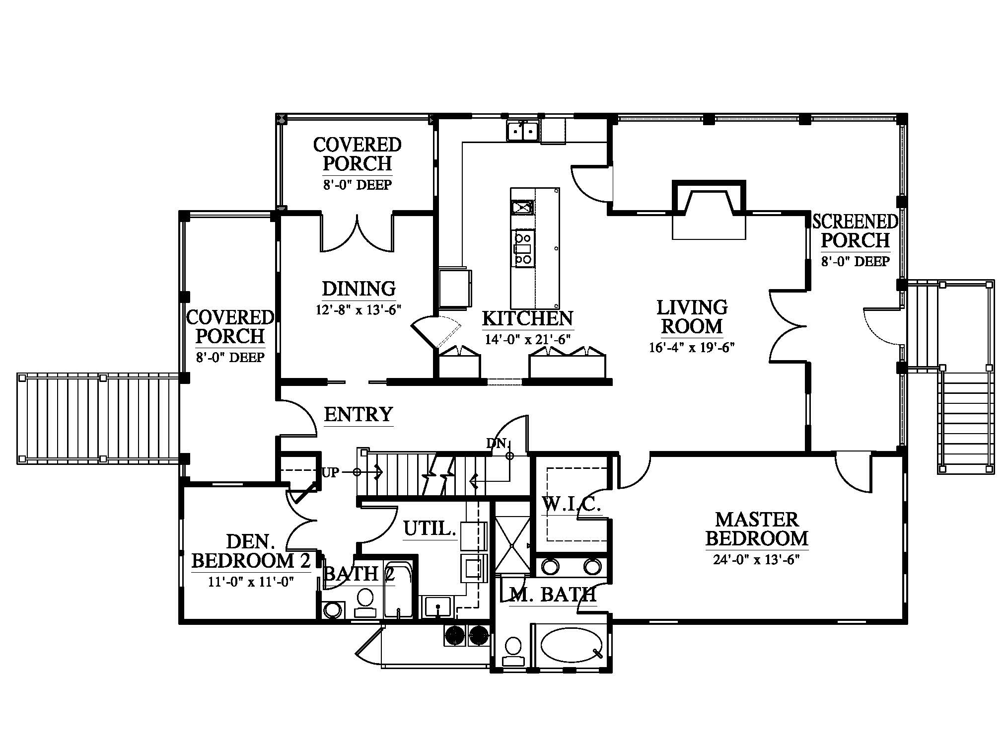
Bedrooms: 
4
Bathrooms: 
3
1/2 Bathroom: 
No
Screened In Porch: 
338
sq.ft.
Covered Porch: 
179
sq.ft.
Deck: 
No
Loft: 
No
1st Flr. Master: 
Yes
Basement: 
No
Attached Garage: 
Yes
Garage: 
1860
sq.ft.
Elevated: 
Yes
Two Masters: 
No
Mother In Law Suite: 
No
Upside Down: 
No
Elevator: 
No
Tower: 
No
3rd Floor




