
The Jekyll (143171)
ID Number:
143171
House Plan Details
ID Number:
143171
1st Floor: 
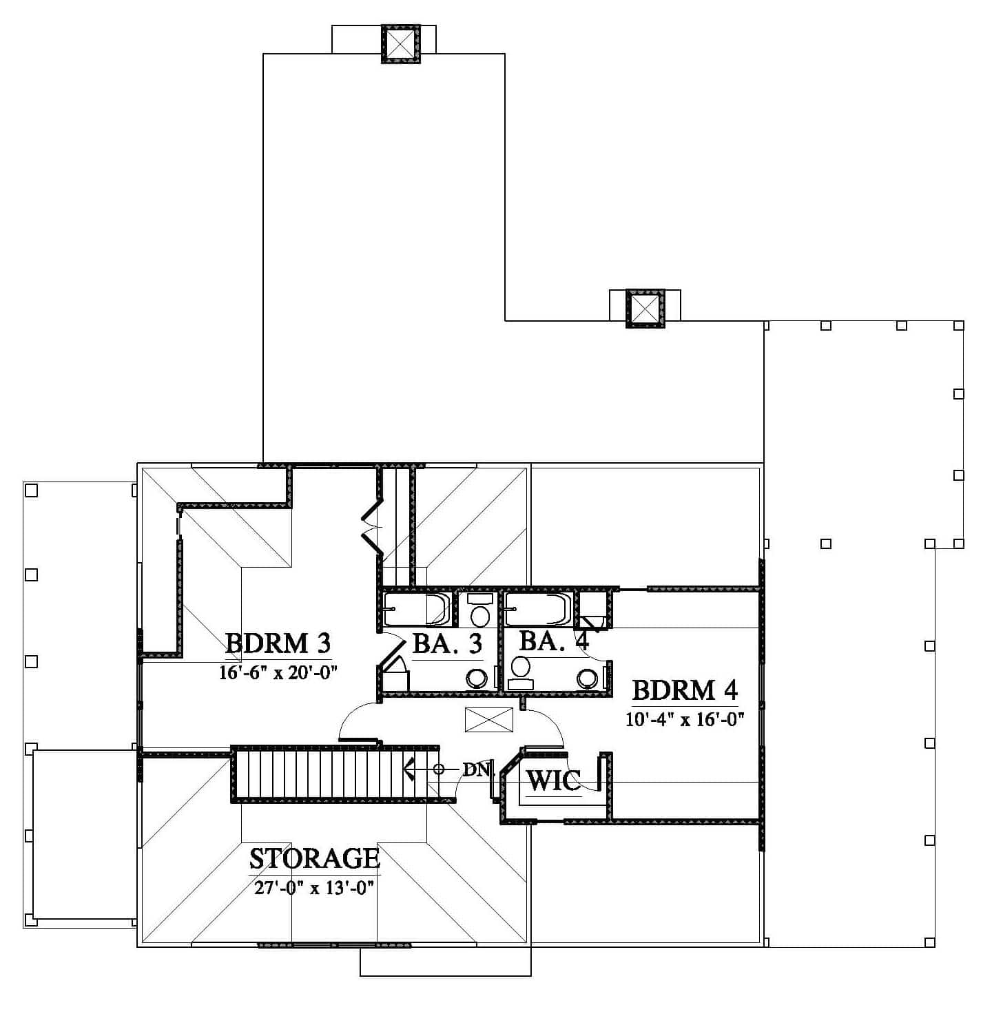
2034
sq.ft.
2nd Floor: 
737
sq.ft.
Total Sq. Ft.: 
2771'
Width: 
66'
Length: 
66' 9"
Bedrooms: 
4
Bathrooms: 
4
1/2 Bathroom: 
No
Screened In Porch: 
221
sq.ft.
Covered Porch: 
487
sq.ft.
Deck: 
No
Loft: 
No
1st Flr. Master: 
Yes
Basement: 
No
Garage: 
No
Elevated: 
No
Two Masters: 
No
Mother In Law Suite: 
No
Upside Down: 
No
Elevator: 
No
Tower: 
No



