
The Palmetto (153130)
ID Number:
153130
House Plan Details
ID Number:
153130
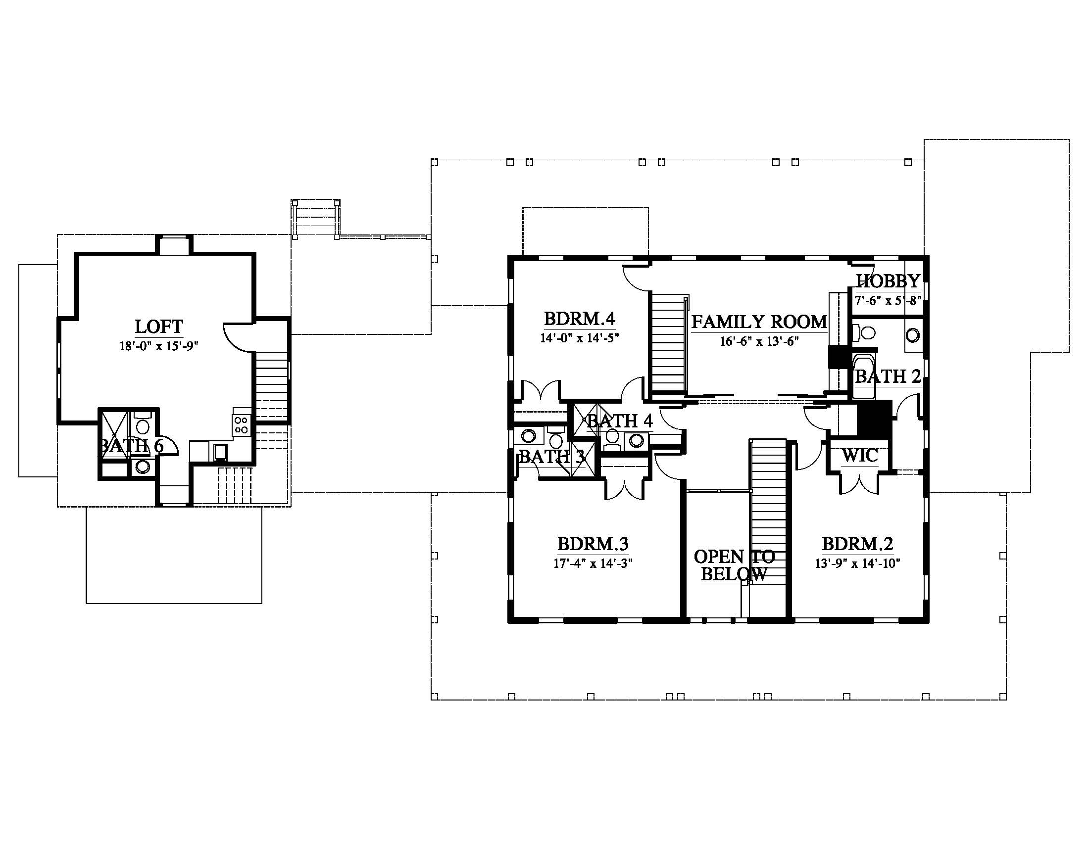
1st Floor: 
2590
sq.ft.
2nd Floor: 
1938
sq.ft.
Total Sq. Ft.: 
4528'
Width: 
108' 8"
Length: 
58'
Bedrooms: 
5
Bathrooms: 
6
1/2 Bathroom: 
Yes
Screened In Porch: 
482
sq.ft.
Covered Porch: 
693
sq.ft.
Deck: 
150
sq.ft.
Loft: 
No
1st Flr. Master: 
Yes
Basement: 
No
Attached Garage: 
Yes
Garage: 
950
sq.ft.
Elevated: 
No
Two Masters: 
No
Mother In Law Suite: 
No
Upside Down: 
No
Elevator: 
No
Tower: 
No



