
Wiggins Street Cottage (11317)
ID Number:
11317
House Plan Details
ID Number:
11317
1st Floor: 
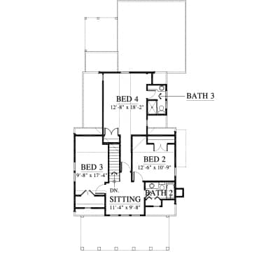
1292
sq.ft.
2nd Floor: 
914
sq.ft.
Total Sq. Ft.: 
2206'
Width: 
33'
Length: 
73' 4"
Bedrooms: 
4
Bathrooms: 
3
1/2 Bathroom: 
Yes
Screened In Porch: 
No
Covered Porch: 
260
sq.ft.
Deck: 
95
sq.ft.
Loft: 
No
1st Flr. Master: 
Yes
Basement: 
No
Attached Garage: 
Yes
Garage: 
453
sq.ft.
Elevated: 
No
Two Masters: 
No
Mother In Law Suite: 
No
Upside Down: 
No
Elevator: 
No
Tower: 
No



